Application V J . )

Total Page:16

File Type:pdf, Size:1020Kb

Load more

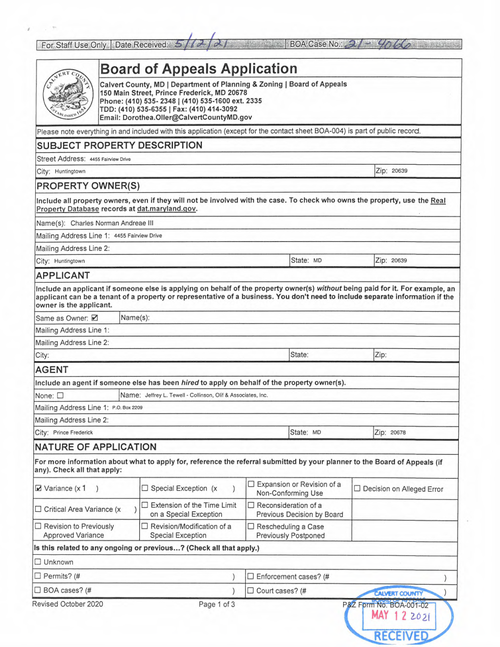
For Staff Use. Only Date Recéived:. BOA, Càsé No.:./ Board of Appeals Application V j . ). Calvert County, MD I Department of Planning & Zoning I Board of Appeals J 150 Main Street, Prince Frederick, MD 20678 Phone: (410) 535- 2348 1(410) 535-1600 ext. 2335 TDD: (410) 535-6355 I Fax: (410) 414-3092 "r Email: Dorothea.011erCalvertCountyMD.gov Please note everything in and included with this application (except for the contact sheet BOA-004) is part of public record. SUBJECT PROPERTY DESCRIPTION Street Address: 4455 Fairview Drive City: Huntingtown Zip: 20639 PROPERTY OWNER(S) Include all property owners, even if they will not be involved with the case. To check who owns the property, use the Real Property Database records at dat.maryland.qov. Name(s): Charles Norman Andreae Ill Mailing Address Line 1: 4455 Fairview Drive Mailing Address Line 2: City: Huntingtown State: MD Zip: 20639 APPLICANT Include an applicant if someone else is applying on behalf of the property owner(s) without being paid for it. For example, an applicant can be a tenant of a property or representative of a business. You don't need to include separate information if the owner is the applicant. Same as Owner: R1 Name(s): Mailing Address Line 1: Mailing Address Line 2: City: State: Zip: AGENT Include an agent if someone else has been hired to apply on behalf of the property owner(s). None: E Name: Jeffrey L. Teweli - Collinson, Out & Associates, Inc. Mailing Address Line 1: P.O. Box 2209 Mailing Address Line 2: City: Prince Frederick State: MD Zip: 20678 NATURE OF APPLICATION For more information about what to apply for, reference the referral submitted by your planner to the Board of Appeals (if any). Check all that apply: 0of Expansion or Revisiona Variance (x 1 E Special Exception (x 0 Decision on Alleged Error ) ) Non-Conforming Use ExtensionEl of the Time Limit El Reconsideration of a E Critical Area Variance (x ) on a Special Exception Previous Decision by Board Revision to Previously E Revision/Modification of a E Rescheduling a Case Approved Variance Special Exception Previously Postponed Is this related to any ongoing or previous...? (Check all that apply.) El Unknown Permits? (# ) E Enforcement cases? (# E BOA cases? (# ) LJ Court cases? (# Revised October 2020 Page 1 of 3 P F. 'a._-4A-0G • MAY 12 ?,62( QRECEIVE' FOr. Staff Use On.. Date Reçeived:, ,BOACaeNo.: DESCRIPTION OF REQUEST Write a few sentences about what you're applying for. The best descriptions incorporate one of the phrases under "Nature of Application" using something like "I am seeking a variance to do thus-and-so." Special Cases: If you want to raise livestock such as chickens, please include the number and sex of the animals, such as "three hens and one rooster." If you want to start a home-based business, please include the operating hours, number of customers onsite at a time, whether appointments are necessary, and frequency of customers. J My description of request is on a separate page. Subject site is eligible to be subdivided to create two intra-family transfer lots within the Critical Area. The property is currently improved with a single family dwelling and a detached accessory apartment, both constructed prior to the adoption of the Calvert County Zoning Ordinance. A variance is requested to reduce the side building restriction line from 30' to 16' or the accessory apartment (which will become the primary dwelling) on proposed Lot 4A. FEES Use this section to calculate the fees due with your application. Please make checks payable to "Calvert County Treasurer." D This application is on behalf of a non-profit organization which is not required to pay these fees. (Include a copy of documentation proving the non-profit's status, such as a 501(c) determination letter or similar.) 0 I already paid my referral fee so I don't need to pay it again. (Include a copy of your receipt.) Item Quantity x Amount Total Variance (including Critical Area) 1 X $150.00 $150.00 Special Exception x $300.00 $0.00 Decision on Alleged Error X $150.00 $0.00 Reconsideration Request X $150.00 so.00 Postponement or Continuance of Case at Applicant's Request X $150.00 so.00 Time Limit Extension on Special Exception X $300.00 so.00 Modification X $300.00 so.00 Expansion of Non-Conforming Use X $300.00 so.00 Referral (MANDATORY for Variances and Special Exceptions—only 1 required per application) i X $35.00 $35.00 Total Amount Due: $185.00 I am paying this fee using a: LI Check (# ) 0 Money Order (# ) 0 cash (exact change) For Staff Use Only . •... ., 74' ... : . .. ::.: ;.. ... .. : . Dat&of Payment:,' 5JI//.J Receit: h. .•.. .. :. P .', Initials: . .. Revised October 2020 Page 2 of 3 P&Z Form No. BOA-001-02 For Staff Use Only Date Received: BOAëNb.:. WHAT TO INCLUDE WITH YOUR APPLICATION For a Variance(s) (including Critical Area): Completed application (this form, BOA-001) The use/development plan provided to Planning and Zoning (usually the permit application, site plan application, or subdivision application, or similar) 9 A drawing or diagram, to scale, of the proposed development 52 A printout of your property's information from the Real Property Database at dat.maryland.qov El Any other information you feel is relevant Contact sheet (BOA-004) El For a Special Exception: El Completed application (this form, BOA-001) El The use/development plan provided to Planning and Zoning (usually the permit application, site plan application, subdivision application, or similar) D A drawing or diagram, to scale, of the proposed development El A printout of your property's information from the Real Property Database at dat.maryland.qov El Any other information you feel is relevant El Contact sheet (BOA-004) o For a Decision on Alleged Error: El Completed application (this form, BOA 001) El The document upon which the appeal is based El A letter or memo of explanation El A printout of your property's information from the Real Property Database at dat. Maryland. cov El Any other information you feel is relevant El Contact sheet (BOA-004) O For a Reconsideration Request: El Completed application (this form, BOA 001) El The Order upon which the appeal is based El A letter or memo of explanation El A printout of your property's information from the Real Property Database at dat.maryland.qov El Any other information you feel is relevant El Contact sheet (BOA-004) El For Any Other Application Type: El Check with Board of Appeals staff. SIGNATURE All owners of the subject property must sign this application, even if they will not be involved with the case. I hereby certify that, to the best of my knowledge and ability, the information I and any designees have provided in this application is complete and correct. I request that this application be scheduled for the first available Board of Appeals public administration hearing. I grant Board of Appeals staff and members permission to conduct site visits to the subject property. Name Signatur Owner I Charles Norman Andreae, III 05/10/21 Owner 2 Applicant Agent Jeffrey L. Tewell - Collinson, Olif & Associates, Inc. 05/10/21 Revised October 2020 Page 3 of 3 P&Z Form No. BOA-001-02 CALVERT COUNTY CRITICAL AREA WORKSHEET This worksheet must be submitted with a building or grading permit application for proposed activities in the Chesapeake Bay Critical Area(areas within 1,000' of tidal waters or wetlands of the Bay or its tributaries). This form must also be submitted with a site plan, subdivision plan or replotting in the critical area. This form is NOT required if this is a repair (no expansion),, or interior work only. A. Total square footage of your lot (1 acre= 43,560sf) 368,779 SF B. Disturbance within the 100 foot Critical Area Buffer: Will this project disturb any ground, soil or trees within 100' of any stream, creek, or waterway? _ YES ...NO if Yes, disturbance amount sq. ft. C. Forested and Developed Woodland Area Outside the Buffer: Total existing forested & wooded area sq. ft. Total forest and woodland to be removed 0 sq. ft. D. Disturbance on slopes greater than 15%? 0 sq. ft. E. Lot Coverage (please see chart 8-1.2 on back) Existing Lot Coverage Proposed Lot Coverage House (roof) 3,222 SF House (roof) 3,222 Driveway & sidewalks 13,926 SF Driveway & Sidewalks 13,926 SF Accessory Structures 0 Accessory Structures 0 TOTAL EXISTING: 17,148 SF TOTAL PROPOSED: 17,148 SF Total Existing + total proposed new lot coverage= 17,148 SF F. Do trees cover at least 15% of the property? Yes_ No ((IF NO, calculate: size of property x15% i300_ (round down), this is the approximate number of 6' tall, I W' caliper or larger trees required to meet the 15% tree coverage requirement)+ (3 shrubs for each tree required)). Note: Lots under Yz acre may not have Impervious area in excess of 25% of total lot area. Lots over Yx acres may not have impervious area in excess of 15% of total lot area SIGNATURES REQUIRED ON BACK If the recorded plat for this lot indicates the impervious area limit to be differentthan what is calculated above, we will be required to use that amount as recorded. Table 8-1.2 Lot Coverage Limitations [Amended 5-4-2010] Lot/Parcel Size (in square feet) Lot Coverage Limit 0-8.000 25% of lot/parcel plus 500 square feet* 8,001 -21,780 31.25% of lot/parcel.* 21,781 - 36,300 5,445 square feet* Greater than or equal to 36,301 15% of lot/parcel * (i)the property owner shall perform mitigation as per Section 8-1.04.0.3 for the square feet of added lot coverage above 15 percent of the parcel, or * (ii) If paragraph (i) is not feasible, the property owner may pay a fee-in-lieu of performing the on site mitigation equal to $1 20 multiplied by the area in square feet of the new Lot Coverage that exceeds 15 percent of the lot/parcel.
Recommended publications
  • Netease Cloud Music and Big Hit Entertainment Team up to Launch BTS' Song Catalog

    Netease Cloud Music and Big Hit Entertainment Team up to Launch BTS' Song Catalog

    NetEase Cloud Music and Big Hit Entertainment team up to launch BTS' song catalog HANGZHOU, China, May 4, 2018 /PRNewswire/ -- NetEase Cloud Music, China's leading music platform, entered into a partnership agreement with South Korea-based Big Hit Entertainment, whereby the Chinese platform will launch BTS' repertoire of songs on the platform. Big Hit Entertainment, a South Korea-based entertainment company focused on music, represents and manages BTS, the company's leading all-male group, which debuted in 2013. BTS is comprised of seven male vocalists: RM, Jin, SUGA, j-hope, Jimin, V and Jung Kook. BTS, the abbreviation for Bangtan Sonyeondan, also stands for Bulletproof Boys and Beyond The Scene. Since the group's first appearance, they have received several major awards at music festivals held in South Korea as well as some international events. In 2017, they were named Top Social Artist by Billboard Music Awards, garnering the group worldwide attention. This February, they were again listed as an award candidate, competing with international superstars. Recently, NetEase Cloud Music launched BTS' widely popular catalog of songs on its platform, including MIC Drop (Steve Aoki Remix) (Feat. Desiigner), DNA, Spring Day, Not Today, Blood Sweat & Tears, Fire, Dope and I need U. In addition to music copyright, NetEase Cloud Music will cooperate with Big Hit Entertainment on artist and music promotion, marking the start of a close collaboration that will cover all aspects of the music business. The two parties look forward to jointly driving the popularity of music artists and their works via multiple channels, while offering higher quality music services to wider audiences.
  • The Globalization of K-Pop: the Interplay of External and Internal Forces

    The Globalization of K-Pop: the Interplay of External and Internal Forces

    THE GLOBALIZATION OF K-POP: THE INTERPLAY OF EXTERNAL AND INTERNAL FORCES Master Thesis presented by Hiu Yan Kong Furtwangen University MBA WS14/16 Matriculation Number 249536 May, 2016 Sworn Statement I hereby solemnly declare on my oath that the work presented has been carried out by me alone without any form of illicit assistance. All sources used have been fully quoted. (Signature, Date) Abstract This thesis aims to provide a comprehensive and systematic analysis about the growing popularity of Korean pop music (K-pop) worldwide in recent years. On one hand, the international expansion of K-pop can be understood as a result of the strategic planning and business execution that are created and carried out by the entertainment agencies. On the other hand, external circumstances such as the rise of social media also create a wide array of opportunities for K-pop to broaden its global appeal. The research explores the ways how the interplay between external circumstances and organizational strategies has jointly contributed to the global circulation of K-pop. The research starts with providing a general descriptive overview of K-pop. Following that, quantitative methods are applied to measure and assess the international recognition and global spread of K-pop. Next, a systematic approach is used to identify and analyze factors and forces that have important influences and implications on K-pop’s globalization. The analysis is carried out based on three levels of business environment which are macro, operating, and internal level. PEST analysis is applied to identify critical macro-environmental factors including political, economic, socio-cultural, and technological.
  • Vicarious Reward Response Is Positively Correlated with Functional Connectivity in the Resting State Default Mode Network

    Vicarious Reward Response Is Positively Correlated with Functional Connectivity in the Resting State Default Mode Network

    Psychology, 2020, 11, 1574-1591 https://www.scirp.org/journal/psych ISSN Online: 2152-7199 ISSN Print: 2152-7180 Vicarious Reward Response Is Positively Correlated with Functional Connectivity in the Resting State Default Mode Network Tsukasa Inomata1, Sotaro Shimada2 1Electrical Engineering Program, Graduate School of Science and Technology, Meiji University, Kawasaki, Japan 2Department of Electronics and Bioinformatics, School of Science and Technology, Meiji University, Kawasaki, Japan How to cite this paper: Inomata, T., & Shi- Abstract mada, S. (2020). Vicarious Reward Response Is Positively Correlated with Functional Con- Some people can easily empathize with others, while others cannot. The neural nectivity in the Resting State Default Mode mechanism underlying individual difference of how much people can em- Network. Psychology, 11, 1574-1591. pathize with others is still not clear. Vicarious reward is the phenomenon by https://doi.org/10.4236/psych.2020.1110100 which we vicariously experience the positive sensations or emotions of others. Received: September 20, 2020 Beta oscillatory activity (BOA) is observed when participants experience vica- Accepted: October 26, 2020 rious reward. Recent studies have reported that the default mode network Published: October 29, 2020 (DMN) is also involved in reward processing and have suggested that indi- Copyright © 2020 by author(s) and vidual differences in the way participants respond to reward stimuli are cor- Scientific Research Publishing Inc. related with DMN functional connectivity during the resting state. In the This work is licensed under the Creative current study, we investigated whether DMN functional connectivity during Commons Attribution International License (CC BY 4.0). the resting state is also correlated with BOA for vicarious reward.
  • Reconciling Pcard Transactions in BOA Works, the Guide

    Reconciling Pcard Transactions in BOA Works, the Guide

    Reconciling PCard Transactions in BOA Works, the Guide Table of Contents RECONCILIATION REPORT ..........................................................................................................................................2 BASIC NAVIGATION IN WORKS ...................................................................................................................................3 • Log In/Lock Out Issues in Works ................................................................................................................3 • Home Page ................................................................................................................................................4 • Action Items...............................................................................................................................................5 • Accounts Dashboard ..................................................................................................................................6 • View Auth Log (Authorization Log)/Check Balance ...................................................................................6 • View Full Details of Account ......................................................................................................................7 • Activate a Card ..........................................................................................................................................9 • Signoff status of transactions ................................................................................................................
  • Between Hybridity and Hegemony in K-Pop's Global Popularity

    Between Hybridity and Hegemony in K-Pop's Global Popularity

    International Journal of Communication 11(2017), 2367–2386 1932–8036/20170005 Between Hybridity and Hegemony in K-Pop’s Global Popularity: A Case of Girls’ Generation’s American Debut GOOYONG KIM1 Cheyney University of Pennsylvania, USA Examining the sociocultural implications of Korean popular music (K-pop) idol group Girls’ Generation’s (SNSD’s) debut on Late Show With David Letterman, this article discusses how the debut warrants a critical examination on K-pop’s global popularity. Investigating critically how the current literature on K-pop’s success focuses on cultural hybridity, this article maintains that SNSD’s debut clarifies how K-pop’s hybridity does not mean dialectical interactions between American form and Korean content. Furthermore, this article argues that cultural hegemony as a constitutive result of sociohistorical and politico- economic arrangements provides a better heuristic tool, and K-pop should be understood as a part of the hegemony of American pop and neoliberalism. Keywords: Korean popular music, cultural hybridity, cultural hegemony, neoliberalism As one of the most sought-after Korean popular music (K-pop) groups, Girls’ Generation’s (SNSD’s) January 2012 debut on two major network television talk shows in the United States warrants critical reconsideration of the current discourse on cultural hybridity as the basis of K-pop’s global popularity. Prior to Psy’s “Gangnam Style” phenomenon, SNSD’s “The Boys” was the first time a Korean group appeared on an American talk show. It marks a new stage in K-pop’s global reach and influence. With a surge of other K- pop idols gaining global fame, especially in Japan, China, and other Asian countries, SNSD’s U.S.
  • Rolex Women's World Golf Rankings Monday, September 05, 2011

    Rolex Women's World Golf Rankings Monday, September 05, 2011

    Rolex Women's World Golf Rankings Monday, September 05, 2011 Rank Change Name Country Events Total Average 1 -- Yani Tseng TPE 50 778.75 15.57 2 -- Suzann Pettersen NOR 38 464.40 12.22 3 -- Cristie Kerr USA 42 486.25 11.58 4 +1 Na Yeon Choi KOR 51 467.98 9.18 5 -1 Jiyai Shin KOR 56 503.97 9.00 6 -- Sun Ju Ahn KOR 48 387.11 8.06 7 -- Ai Miyazato JPN 51 385.41 7.56 8 -- I.K. Kim KOR 44 325.95 7.41 9 -- Paula Creamer USA 37 271.02 7.32 10 -- Brittany Lincicome USA 45 322.24 7.16 11 -- Stacy Lewis USA 51 359.05 7.04 12 -- Michelle Wie USA 39 252.97 6.49 13 -- Karrie Webb AUS 43 270.87 6.30 14 -- Inbee Park KOR 59 355.17 6.02 15 -- Morgan Pressel USA 46 274.76 5.97 16 -- Chie Arimura JPN 66 370.12 5.61 17 -- Song-Hee Kim KOR 47 251.51 5.35 18 -- Angela Stanford USA 44 234.70 5.33 19 -- Maria Hjorth SWE 45 233.26 5.18 20 -- Sakura Yokomine JPN 65 327.51 5.04 21 -- Miki Saiki JPN 64 310.27 4.85 22 -- Mika Miyazato JPN 52 251.11 4.83 23 -- Ji-Hee Lee KOR 55 256.36 4.66 24 -- Amy Yang KOR 46 212.89 4.63 25 -- So-Yeon Ryu KOR 49 221.41 4.52 26 -- Hee Kyung Seo KOR 46 204.47 4.44 27 -- Yuri Fudoh JPN 49 209.83 4.28 28 -- Anna Nordqvist SWE 47 180.72 3.85 29 -- Mi-Jeong Jeon KOR 60 230.22 3.84 30 -- Catriona Matthew SCO 39 141.85 3.64 31 -- Brittany Lang USA 45 162.93 3.62 32 -- Sun Young Yoo KOR 47 165.53 3.52 33 -- Katherine Hull AUS 53 186.02 3.51 34 +1 Shanshan Feng CHN 40 133.83 3.35 35 -1 Yukari Baba JPN 66 220.52 3.34 36 -- Se-Ri Pak KOR 36 117.97 3.28 37 +3 Na Ri Kim KOR 53 168.14 3.17 38 -1 Sophie Gustafson SWE 51 159.19 3.12 39 +9 Caroline
  • Participant List

    Participant List

    Participant List 10/20/2019 8:45:44 AM Category First Name Last Name Position Organization Nationality CSO Jillian Abballe UN Advocacy Officer and Anglican Communion United States Head of Office Ramil Abbasov Chariman of the Managing Spektr Socio-Economic Azerbaijan Board Researches and Development Public Union Babak Abbaszadeh President and Chief Toronto Centre for Global Canada Executive Officer Leadership in Financial Supervision Amr Abdallah Director, Gulf Programs Educaiton for Employment - United States EFE HAGAR ABDELRAHM African affairs & SDGs Unit Maat for Peace, Development Egypt AN Manager and Human Rights Abukar Abdi CEO Juba Foundation Kenya Nabil Abdo MENA Senior Policy Oxfam International Lebanon Advisor Mala Abdulaziz Executive director Swift Relief Foundation Nigeria Maryati Abdullah Director/National Publish What You Pay Indonesia Coordinator Indonesia Yussuf Abdullahi Regional Team Lead Pact Kenya Abdulahi Abdulraheem Executive Director Initiative for Sound Education Nigeria Relationship & Health Muttaqa Abdulra'uf Research Fellow International Trade Union Nigeria Confederation (ITUC) Kehinde Abdulsalam Interfaith Minister Strength in Diversity Nigeria Development Centre, Nigeria Kassim Abdulsalam Zonal Coordinator/Field Strength in Diversity Nigeria Executive Development Centre, Nigeria and Farmers Advocacy and Support Initiative in Nig Shahlo Abdunabizoda Director Jahon Tajikistan Shontaye Abegaz Executive Director International Insitute for Human United States Security Subhashini Abeysinghe Research Director Verite
  • Past, Present and Future of Hallyu (Korean Wave)

    Past, Present and Future of Hallyu (Korean Wave)

    American International Journal of Contemporary Research Vol. 5, No. 5; October 2015 Past, Present and Future of Hallyu (Korean Wave) Kim Bok-rae Professor Andong national University I. Introduction Hallyu refers to the phenomenon of Korean popular culture which came into vogue in Southeast Asia and mainland China in late 1990s. Especially, hallyu is very popular among young people enchanted with Korean music (K-pop), dramas (K-drama), movies, fashion, food, and beauty in China, Taiwan, Hong Kong, and Vietnam, etc. This cultural phenomenon has been closely connected with multi-layered transnational movements of people, information and capital flows in East Asia. Since the 15th century, East and West have been the two subjects of cultural phenomena. Such East–West dichotomy was articulated by Westerners in the scholarly tradition known as “Orientalism.”During the Age of Exploration (1400–1600), West didn’t only take control of East by military force, but also created a new concept of East/Orient, as Edward Said analyzed it expertly in his masterpiece Orientalism in 1978. Throughout the history of imperialism for nearly 4-5 centuries, west was a cognitive subject, but East was an object being recognized by the former. Accordingly, “civilization and modernization” became the exclusive properties of which West had copyright (?!), whereas East was a “sub-subject” to borrow or even plagiarize from Western standards. In this sense, (making) modern history in East Asia was a compulsive imitation of Western civilization or a catch-up with the West in other wards. Thus, it is interesting to note that East Asian people, after gaining economic power through “compressed modernization,”1 are eager to be main agents of their cultural activities in and through the enjoyment of East Asian popular culture in a postmodern era.
  • Global Conservation Translocation Perspectives: 2021. Case Studies from Around the Globe

    Global Conservation Translocation Perspectives: 2021. Case Studies from Around the Globe

    Global conservation Global conservation translocation perspectives: 2021 translocation perspectives: 2021 IUCN SSC Conservation Translocation Specialist Group Global conservation translocation perspectives: 2021 Case studies from around the globe Edited by Pritpal S. Soorae IUCN SSC Conservation Translocation Specialist Group (CTSG) i The designation of geographical entities in this book, and the presentation of the material, do not imply the expression of any opinion whatsoever on the part of IUCN or any of the funding organizations concerning the legal status of any country, territory, or area, or of its authorities, or concerning the delimitation of its frontiers or boundaries. The views expressed in this publication do not necessarily reflect those of IUCN. IUCN is pleased to acknowledge the support of its Framework Partners who provide core funding: Ministry of Foreign Affairs of Denmark; Ministry for Foreign Affairs of Finland; Government of France and the French Development Agency (AFD); the Ministry of Environment, Republic of Korea; the Norwegian Agency for Development Cooperation (Norad); the Swedish International Development Cooperation Agency (Sida); the Swiss Agency for Development and Cooperation (SDC) and the United States Department of State. Published by: IUCN SSC Conservation Translocation Specialist Group, Environment Agency - Abu Dhabi & Calgary Zoo, Canada. Copyright: © 2021 IUCN, International Union for Conservation of Nature and Natural Resources Reproduction of this publication for educational or other non- commercial purposes is authorized without prior written permission from the copyright holder provided the source is fully acknowledged. Reproduction of this publication for resale or other commercial purposes is prohibited without prior written permission of the copyright holder. Citation: Soorae, P. S.
  • THE GLOBALIZATION of K-POP by Gyu Tag

    THE GLOBALIZATION of K-POP by Gyu Tag

    DE-NATIONALIZATION AND RE-NATIONALIZATION OF CULTURE: THE GLOBALIZATION OF K-POP by Gyu Tag Lee A Dissertation Submitted to the Graduate Faculty of George Mason University in Partial Fulfillment of The Requirements for the Degree of Doctor of Philosophy Cultural Studies Committee: ___________________________________________ Director ___________________________________________ ___________________________________________ ___________________________________________ Program Director ___________________________________________ Dean, College of Humanities and Social Sciences Date: _____________________________________ Spring Semester 2013 George Mason University Fairfax, VA De-Nationalization and Re-Nationalization of Culture: The Globalization of K-Pop A dissertation submitted in partial fulfillment of the requirements for the degree of Doctor of Philosophy at George Mason University By Gyu Tag Lee Master of Arts Seoul National University, 2007 Director: Paul Smith, Professor Department of Cultural Studies Spring Semester 2013 George Mason University Fairfax, VA Copyright 2013 Gyu Tag Lee All Rights Reserved ii DEDICATION This is dedicated to my wife, Eunjoo Lee, my little daughter, Hemin Lee, and my parents, Sung-Sook Choi and Jong-Yeol Lee, who have always been supported me with all their hearts. iii ACKNOWLEDGEMENTS This dissertation cannot be written without a number of people who helped me at the right moment when I needed them. Professors, friends, colleagues, and family all supported me and believed me doing this project. Without them, this dissertation is hardly can be done. Above all, I would like to thank my dissertation committee for their help throughout this process. I owe my deepest gratitude to Dr. Paul Smith. Despite all my immaturity, he has been an excellent director since my first year of the Cultural Studies program.
  • Running Head: K-POP FANSHIP, FANDOM, SOCIAL IDENTITY THEORY

    Running Head: K-POP FANSHIP, FANDOM, SOCIAL IDENTITY THEORY

    Running Head: K-POP FANSHIP, FANDOM, SOCIAL IDENTITY THEORY. 1 Positive Psychosocial Outcomes and Fanship in K-Pop Fans: A Social Identity Theory Perspective. Author Derek A. Laffan Affiliation Dún Laoghaire Institute of Art, Design and Technology Please cite this work as follows: Laffan, D. A. (2020). Positive Psychosocial Outcomes and Fanship in K-Pop Fans: A Social Identity Theory Perspective. Psychological Reports. doi: https://doi.org/10.1177%2F0033294120961524. [Link to article: https://journals.sagepub.com/eprint/ 7RFN3NQNZRFDYWR4C76V/full] Running Head: K-POP FANSHIP, FANDOM, SOCIAL IDENTITY THEORY. 2 Positive Psychosocial Outcomes and Fanship in K-Pop Fans: A Social Identity Theory Perspective. Abstract Korean pop culture (K-Pop) has spread its influence outside of Korea to a worldwide fan audience. The present study investigated the self-categorised K-Pop fandom characteristics that predicted higher levels of K-Pop fanship, and subsequent psychosocial outcomes. Social identity theory was applied as a theoretical framework. In total, 1477 K-Pop fans from 92 predominantly Western countries fully completed an extensive online survey measuring fanship, fandom and psychosocial outcomes (happiness, self-esteem and social connectedness). Results of this study indicated that K- Pop fanship was significantly predicted by a several K-Pop demographic and fandom characteristics. K-Pop fanship was a significant predictor of increased happiness, self-esteem and social connectedness. The study findings advance the application of social identity theory in a K-Pop fan context and the psychological fanship research more broadly. Keywords: Social identity theory, fanship, fandom, K-Pop, self-categorisation. Running Head: K-POP FANSHIP, FANDOM, SOCIAL IDENTITY THEORY.
  • Diversity of K-Pop: a Focus on Race, Language, and Musical Genre

    Diversity of K-Pop: a Focus on Race, Language, and Musical Genre

    DIVERSITY OF K-POP: A FOCUS ON RACE, LANGUAGE, AND MUSICAL GENRE Wonseok Lee A Thesis Submitted to the Graduate College of Bowling Green State University in partial fulfillment of the requirements for the degree of MASTER OF ARTS August 2018 Committee: Jeremy Wallach, Advisor Esther Clinton Kristen Rudisill © 2018 Wonseok Lee All Rights Reserved iii ABSTRACT Jeremy Wallach, Advisor Since the end of the 1990s, Korean popular culture, known as Hallyu, has spread to the world. As the most significant part of Hallyu, Korean popular music, K-pop, captivates global audiences. From a typical K-pop artist, Psy, to a recent sensation of global popular music, BTS, K-pop enthusiasts all around the world prove that K-pop is an ongoing global cultural flow. Despite the fact that the term K-pop explicitly indicates a certain ethnicity and language, as K- pop expanded and became influential to the world, it developed distinct features that did not exist in it before. This thesis examines these distinct features of K-pop focusing on race, language, and musical genre: it reveals how K-pop groups today consist of non-Korean musicians, what makes K-pop groups consisting of all Korean musicians sing in non-Korean languages, what kind of diverse musical genres exists in the K-pop field with two case studies, and what these features mean in terms of the discourse of K-pop today. By looking at the diversity of K-pop, I emphasize that K-pop is not merely a dance- oriented musical genre sung by Koreans in the Korean language.